色彩拼贴——乌兰浩特市铁西幼儿园建筑设计
设计背景
新建铁西幼儿园位于内蒙古自治区乌兰浩特市,地处城市更新发展中的老城区区块。乌兰浩特市是内蒙古自治区兴安盟的行政中心,兴安盟位于我国东北部地区,毗邻黑龙江和吉林两省,具有鲜明的内蒙古和东北省份两者文化特征。乌兰浩特市在蒙语中是“红色之城”的意思,城市位于大兴安岭南麓,科尔沁草原腹地,也兼具了森林与草原两大地理风貌。
铁西幼儿园是政府主导建设的9班大中型幼儿园,总用地面积12199平方米,总建筑面积5300平方米。建筑主体层数为三层,包含9个班的活动单元、多功能活动室、餐饮配套、办公空间等主要功能用房。

建筑远眺
前期思考
幼儿园是我国的重要保育和基础教育机构,近些年国内大城市的幼儿园通过不断的匹配建设,同时具有良好的城市经济背景和幼儿园经营团队,已经在城市中形成了较好的分布和一定的建筑规模。而中小城市的幼儿园建设和经营依然并不规范,大多幼儿园并没有良好的场地和内部空间,私营幼儿园仍然占有主导地位。
本次设计所处的乌兰浩特市是典型发展中的中小城市代表,同时也是具有鲜明地域文化的北方寒地城市代表。如何在经济一般中小城市的老城区树立新的幼儿园范本?如何在北方寒冷地区进行幼儿园单元空间组合?如何挖掘乌兰浩特自身的城市文脉特征?......
场地布局
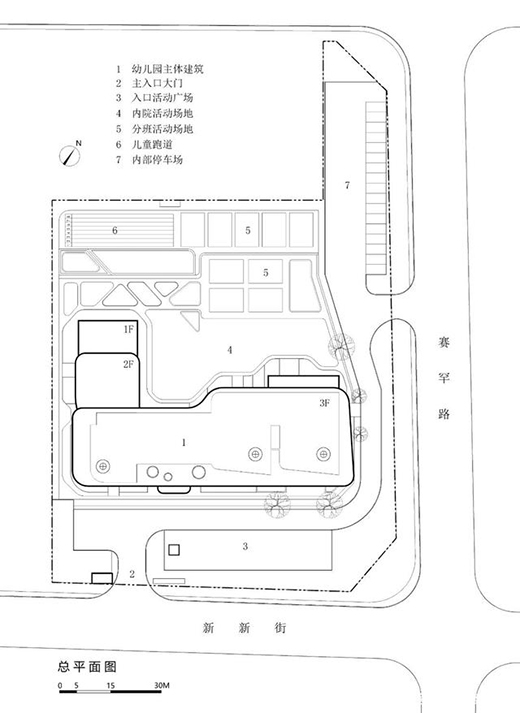
幼儿园基地地处新建城市支路的交叉口,毗邻两侧道路。建筑布局首先考虑到幼儿园儿童房间的朝向问题,基于现有场地的朝向并非正南北情况,建筑突出对东南和西南两个方向阳光呼应,形成了L型的总体布局,使得儿童活动单元和多功能活动室最大限度迎合阳光照射。

总平面图
幼儿园的设计经常以活动单元为模块,形成多单元组合的序列性布局,特别是在南方的设计项目中,活动单元的布置可以更加分散,也会打造出内院、连廊和平台等丰富的室内外空间。而本次设计由于场地局限性,同时处于严寒地区的气候区,因此设计更加强调建筑布局的整体性和连贯性。


建筑航拍
建筑生成
首先,建筑空间布局依托主体活动单元需求,儿童活动单元布置朝向东南侧主路一侧,每层三个活动单元,形成三层的主要体量。多功能活动室朝向西南,迎接采光的同时与主体量形成L型的错落关系。
其次,建筑的活动单元和多功能活动室的体量朝南向适当扭转,同时进行局部平面圆形倒角处理,增加儿童房间的采光需求,也进一步活化体量关系。
最后,建筑在屋面增加悬挑的整体屋檐造型,来统一各部分单元体量,强化建筑的整体联系。水平的屋顶天际线在老城区中与周边复杂的建筑界面对比,展现了更加清晰的形体关系,屋面在活动单元处进行了圆形天窗设置,丰富了建筑屋面层次。

建筑体量生成

功能区块分析

建筑平面图

建筑天际线
色彩拼贴
建筑在宏观布局以及中观体量变化之后,在细节层面思考如何进一步体现幼儿园特征和城市肌理延续。建筑的儿童活动单元由于空间较大而立面相对具有灵活性,因此在单元的楼层间采取了错窗处理,强化建筑立面的灵动性。




建筑细部
随后设计通过红黄橙白的色彩引入,通过色彩拼贴的方式,来大胆的活化建筑表皮界面,展现了幼儿园建筑的儿童情趣特色。暖色系的使用符合北方建筑的冬季视觉需求,也是对基地周边城市建筑色彩的呼应,暖色色彩拼贴使幼儿园建筑既融入乌兰浩特城市环境,也适当的凸显了建筑的自身视觉特征。


彩色幼儿园
项目结语
乌兰浩特铁西幼儿园是在经济基础一般的中小城市中,进行的一次相对低造价的尝试,因此设计突出建筑空间的集约整合和立面色彩的有效尝试。最终幼儿园建筑在整体中寻求变化,展现建筑几个层次的秩序性,希望不要给老城区乱上添乱,在打造自身特色基础上给老城区添加了活力空间。

建筑街景
项目名称:乌兰浩特市铁西幼儿园
建设单位:乌兰浩特市教育局
设计单位:哈尔滨工业大学建筑设计研究院
建筑面积:5300平方米
主创团队:唐家骏、孙权、张波、张波涛、杜婷婷
建筑摄影:唐家骏
-
2021/12/29
-
2021/12/24
-
2021/12/20
- 爱华仕斩获“2021年度中国厨卫行业年度智能
- 回首2021,迎战2022 彩虹线开启新征程!
- 福临板材|福满2021,圆梦2022
- 美特照明:2022年照明新趋势,经销商如何做大
- 会自己“洗澡”的集成灶,帅康自动清洗集成灶
- 带你设计一款功能多变,简单实用的休闲露台阳
- 世纪豪门吊顶:破防了!原来颜值+实力=H20
- 装修木门选的好,噪音统统没烦恼
- 寒潮来了,有淋浴房洗澡更保暖舒服
- 元旦特辑:欧意电器述说生活的点滴与美好
- “中国BETVLCTOR伟德国际网页版”获奖名单出炉,赛戈水漆荣耀
- 2021值得消费大赏 凯迪仕智能锁荣摘两项桂冠
- 益恩家居:新年新气象,爱自己从好好睡觉开始
- 元旦伊始:健康新生活,从精格管道直饮水开始
- 喜迎元旦|新年新灯饰 箔晶智能照明让酒店暖
- 吉美帮的2021 “专精特新” 深耕屋面防水体
- Aqara携手京东成立灯光设计联盟 打造灯饰照
- 年底厨房焕新颜,如何选择厨电?好太太智能来
- 全铝家具全屋莫兰迪色系,这款美式轻奢范赢邻
- 顺趋势·筑凤巢·赢未来 凤梧居门窗2021年会隆








